verbessertes Sandwichelement für Wand mit verdeckter Befestigung mit dem Plus
Z-10.4-901
B-s2,d0 gem. DIN EN 13501-1 schwer entflammbar
80 bis 150 mm
16 Meter
1.000 mm
min. 0,159 W/(m2K)
10% an Gebäudeenergie einsparen
Die Elemente FischerTHERM plus+ bestehen aus zwei beschichteten Stahldeckschichten und einem FCKW- sowie HFCKW-freien Polyurethan-Hartschaumkern. Dieser ist FCKW- und HFCKW-frei und somit nicht ozonschichtschädigend.
Produktionslänge 2,0 - 18,0 m • Kurzlängen 0,5 - 2,0 m • Maximales Paketgewicht 3,0 t •. Pakethöhe von 1,2 m.
Das Produkt bietet hervorragende Wärmedämmung, Luftdichtheit und ermöglicht mit dem optionalen Energy Saver bis zu 10 Prozent mehr an Energieeinsparung. Der Fugendurchlasskoeffizient (a-Wert) übertrifft die DIN-Normen um das Hundertfache.
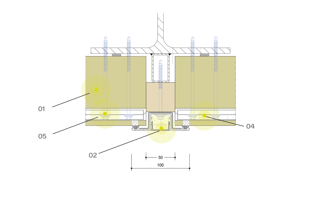
Die Geometrie der FischerTHERM Plus+-Fuge verdeckt die Befestigungspunkte, verbessert so die Ästhetik und bietet noch mehr Schutz gegen Niederschlags- und Tauwasser.
Je nach Anwendungsbereich und gewünschter Wärmedämmung kann eine Dicke von 80 bis 150 mm gewählt werden. Die Baubreite liegt bei 1.000 mm und die empfohlene maximale Länge beträgt 18 Meter. Sonderbaubreiten sind auf Anfrage erhältlich.
FischerTHERM plus+ bietet ein breites Gestaltungsspektrum mit verschiedenen Oberflächenstrukturierungen (Mikrolinierung, Kombilinierung etc.) – der kreativen Fassadengestaltung sind also kaum Grenzen gesetzt. Die Elementfuge dagegen ist einheitlich passend und erlaubt so eine vielfältige Kombination der unterschiedlichen Oberflächenstrukturierungen, mit dem Ziel, maßgeschneiderte Lösungen zu schaffen.
Die angebotenen Beschichtungsvarianten für FischerTHERM plus+ verbinden eine anspruchsvolle Ästhetik mit einem hohen Korrosionsschutz. Ausgewählt werden kann zwischen den Premiumbeschichtungen Colorcoat HPS200 Ultra und Colorcoat Prisma sowie einem breiten Spektrum verfügbarer Farbtöne mit exzellentem UV-Schutz. Auf beide Premiumbeschichtungen gewährt Fischer Profil die Confidex Garantie mit einer Laufzeit von bis zu 40 Jahren.
Nach der Einführung der FischerFIREPROOF MW Sandwichelemente mit Mineralfaserkern haben nun auch die Elemente mit einem Kern aus Polyurethan-Hartschaum, darunter FischerTHERM plus+ in den Elementdicken 80 und 120 mm, das Zertifikat von FM Approvals erhalten. Elementdicke 150 mm ist die Zertifizierungserweiterung beantragt.
FischerTHERM plus+
Oberflächenausführung
Blechdicke
Baubreiten
Elementdicke in mm (D)
Elementdicke in mm (D)


Kombinationsmöglichkeit FischerTHERM plus+ mit FischerFIREPROOF MW plus Die Kombinationsmöglichkeit bei Brandbekämpfungsabschnitten mit unserer neu entwickelten FischerTHERM® plus+ Fugengeometrie erfordert keinen Adapter mehr und ist somit auch ohne erhöhten Planungs- und Montageaufwand verwendbar. Die Elementdicken 80 / 100 / 120 und 150* kommen für eine Kombinationsmöglichkeit in Frage.



FischerTHERM® plus+ ist als FM-getestetes Produkt erhältlich. Der Brandschutz entspricht den FM Approvals Standards 4880* und 4881*. Zudem sind alle FischerTHERM® plus Elemente im VKF-Brandschutzregister BKZ 5.3* eingetragen.
*Elementdicke 150 mm - Zertifizierungserweiterung beantragt.

Brandverhalten Die Muster-Industrie-Bau-Richtlinie (MIndBauRL) regelt den Brandschutz von Industriebauten, einschließlich Feuerwiderstand, Brandverhalten von Baustoffen und Anordnung der Rettungswege. Bauten, die dieser Richtlinie entsprechen, erfüllen die Schutzziele der Musterbauordnung (MBO), was Planung und Genehmigung erleichtert.
Die MIndBauRL legt Mindestanforderungen an den Brandschutz fest und enthält Bestimmungen zur Verhinderung von Brandübertragungen zwischen Brandabschnitten. Dazu gehört der Einsatz nichtbrennbarer Baustoffe in Brandwänden und angrenzenden Fassaden. Unsere Produkte FischerTHERM® plus+ und FischerFIREPROOF MW® plus+ erfüllen diese Anforderungen.
Die Elementfugen sind baugleich und können ohne Adapter montiert werden; bei sichtbaren Befestigungen sind jedoch zusätzliche Kantprofile und Dichtbänder erforderlich.


Xtrem-Linierung auf der Innenschale und in der Vertikalfuge die statisch aktivierte FischerLISENE 100 mm FI 85.083

Linierung Dicke
Blechdicke Außen- / Innenschale
System 1 Feld
Bereich
Elementauslastung
Nachweis Element
Befestigung
Befestigung Auslastung
Vertikalfuge*
Nachweis Element
Deckschichttyp und Stahlgüte
Dämmkern
Beschichtungssysteme
Confidex Garantie
C02-reduziertem Stahl
Dichtbänder
Planung, Ausführung und Montage
Qualität
Umwelt-Produktdeklaration
Eigenschaft / Element
plus+
plus+
plus+
plus+
Für den Rückbau von Fassadenelemente zur Wiederverwendung oder für Cradle to Cradle Kreislaufwirtschaftsanwendungen.
FI 85.084 -160 mm Elemente mit sichtbar befestigten Schrauben werden durch Lisenen abgedeckt.

FI 85.083 - 100 mm mit statischer Aktivierung (Zugelassene Zugtragfähigkeit 6,48 kN/m)

01 FischerTherm® plus + ML 02 Aluminium-Lisenen - Ansichtsbreite 100 mm (FI.85.083) 03 Aluminium-Lisenen - Ansichtsbreite 160 mm (FI.85.084) 04 Lastverteiler - 200 mm ( FI 91.900 ) 05 Befestigungsschraube

Der wichtigste Inhalt stets sofort verfügbar.
Bitte öffnen Sie den untenstehenden Downloadbereich, um die Produktunterlagen zu diesem Element herunterzuladen. Sollten Sie weitere Unterlagen benötigen, besuchen Sie bitte unsere Downloadseite direkt.
Bitte öffnen Sie diesen Downloadbereich, um sich die Produktunterlagen zu diesem Element herunterladen zu können.